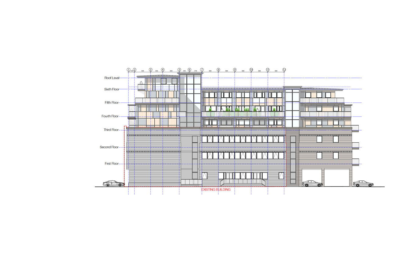
155 Staines Road,

London

 

A structurally challenging project involving raising an existing three storey 1970’s office building to form a new six storey(plus penthouse) housing development by the addition of further floors. Steel framed with precast floors. Additional bracing was introduced together with some additional pad foundations. The existing building is steel framed together with the new high level structural frame.

 

Client: IPM Group

 

Architect: Initia Limited

Consulting Civil and Structural Engineers

Tel: 020 7224 8887